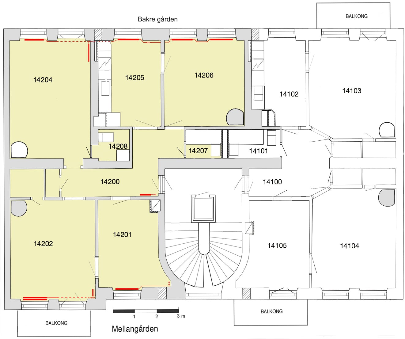
BRF Kättingen 26

HEM
LGH
SMP

Lghnr: 

142

Ytan är enligt den ekonomiska planen och en faktisk laseruppmätning, i hela m².

Gårdshuset (B) 4 tr, på vänster sida när man kliver av hissen

UPPDATERAT: 

2019-12-16

Ytan (m²):

Rum & kök:

Källarförråd nr:

Balkong:

Andelstal:

Årsavgift:

Månadsavgift:

Tillträddes:

97

4

22

1 (stor brandb.)

5,1323

57 181 kr

4 765 kr

1996-01-15

Anmärkningar:

Enligt skatteverkets numrering är lägenhetsnumret 1401.

141
151