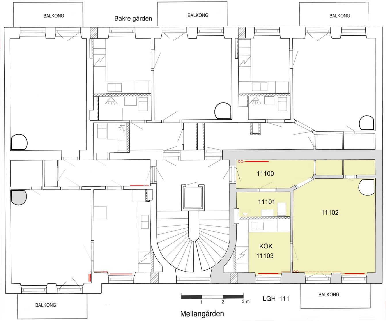
BRF Kättingen 26

HEM
LGH
SMP

Lghnr: 

111

Ytan är enligt den ekonomiska planen och en faktisk laseruppmätning, i hela m².

Gårdshuset (B) 1 tr, till höger när man kliver av hissen

UPPDATERAT: 

2019-12-16

Ytan (m²):

Rum & kök:

Källarförråd nr:

Balkong:

Andelstal:

Årsavgift:

Månadsavgift:

Tillträddes:

36

1

20

1

1,9048

22 484 kr

1 874 kr

2019-02-28

Anmärkningar:

Enligt skatteverkets numrering är lägenhetsnumret 1104.

103
112